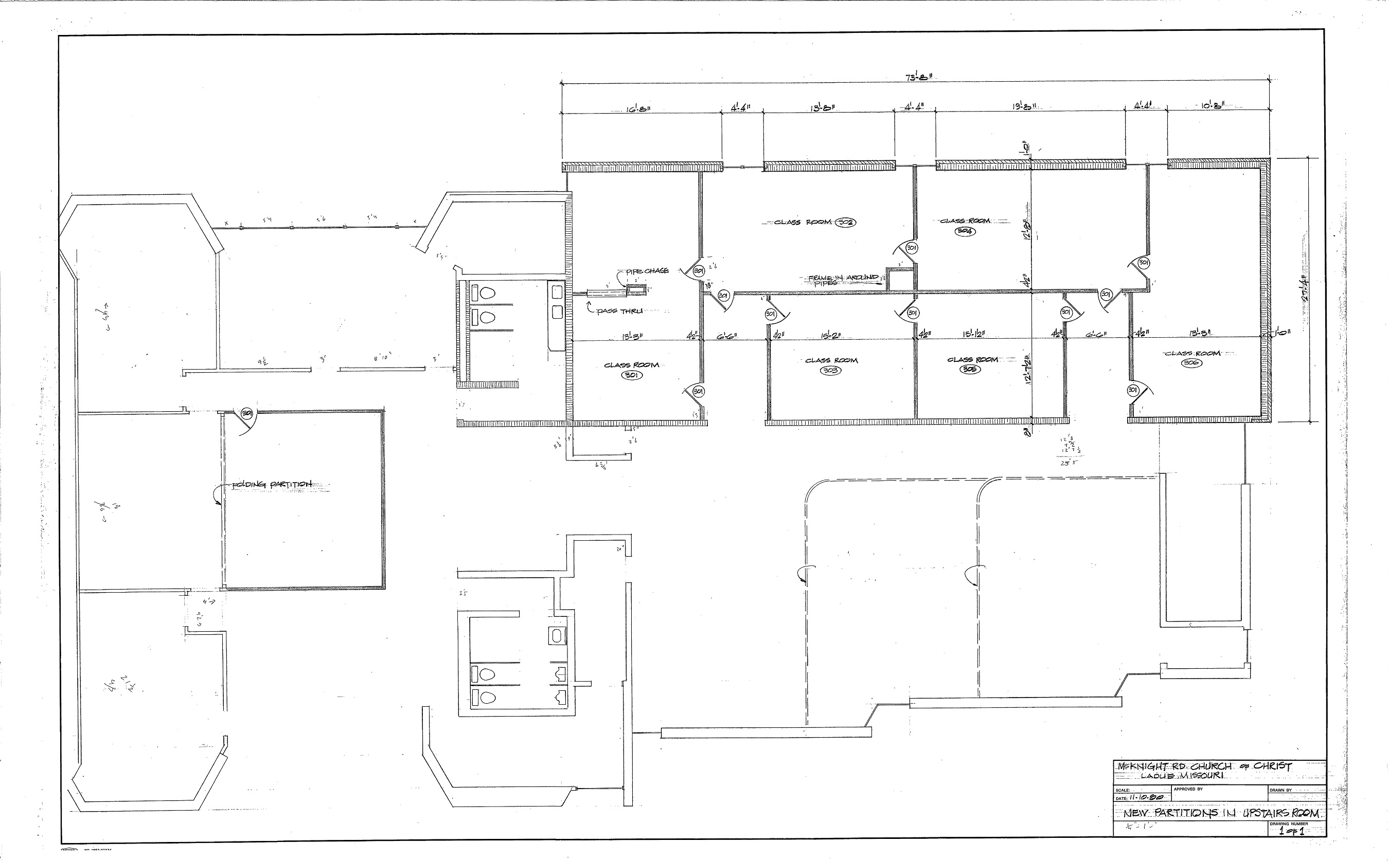
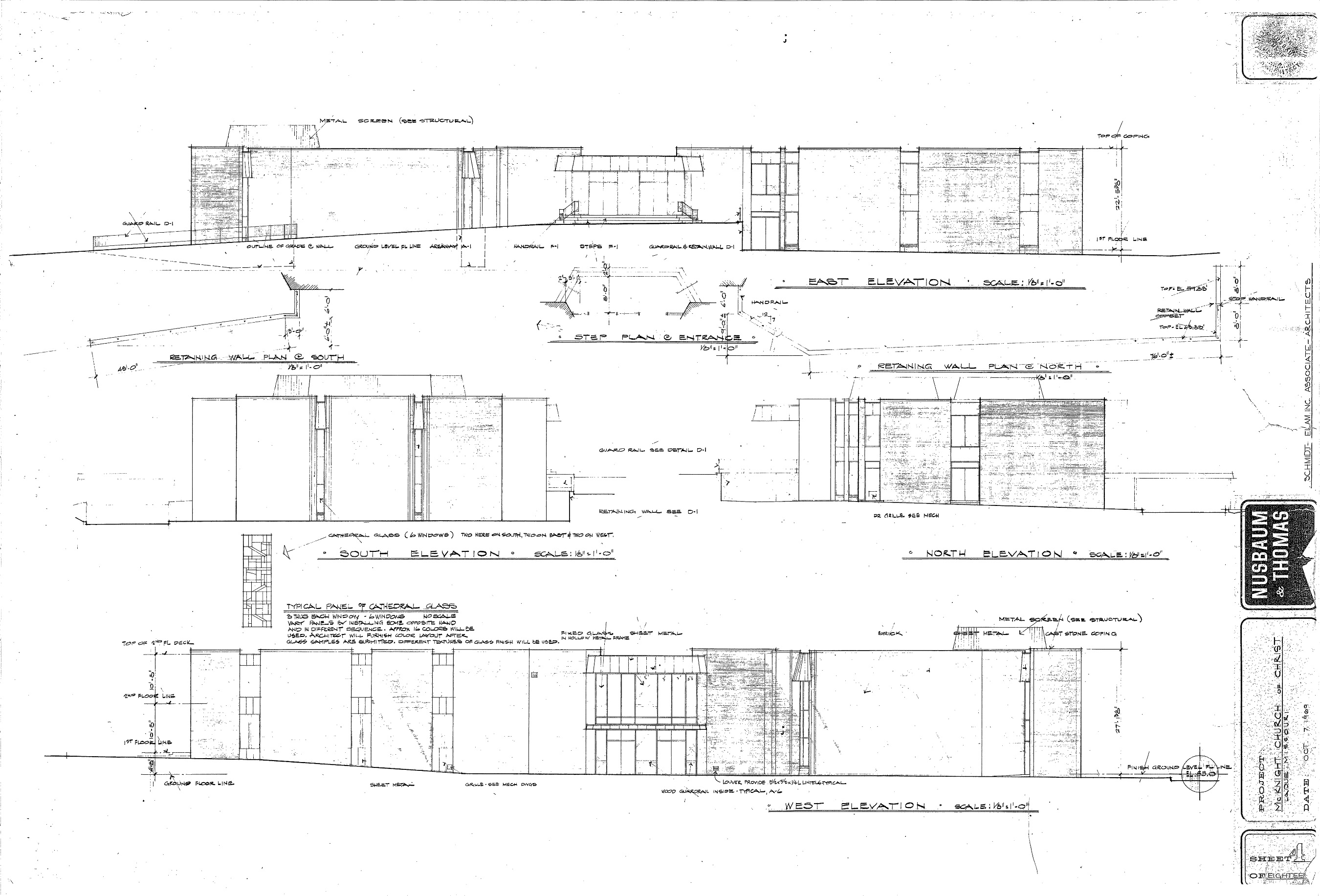
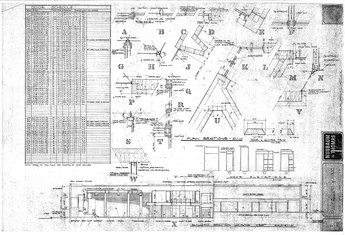
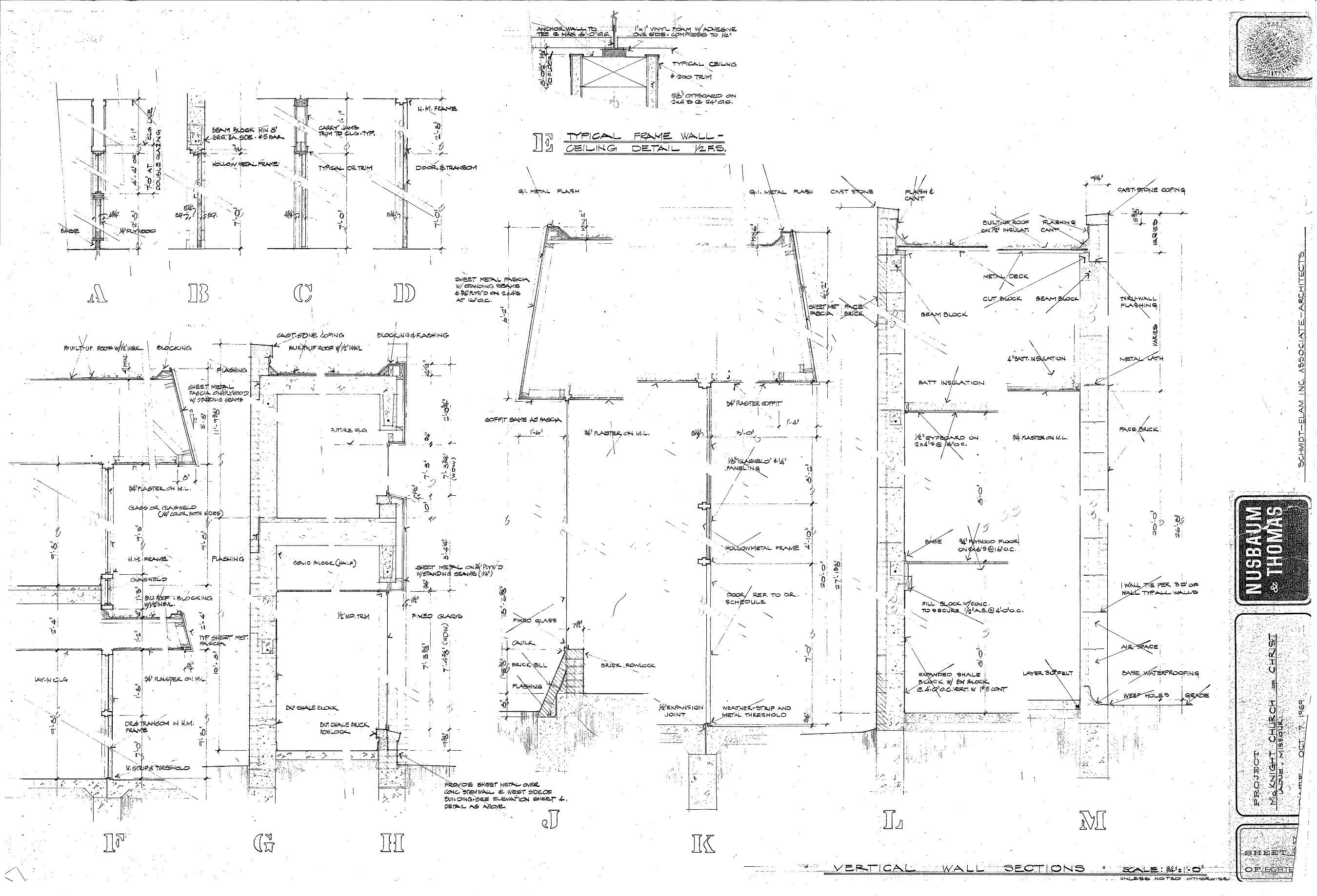
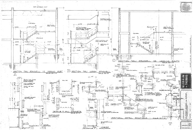
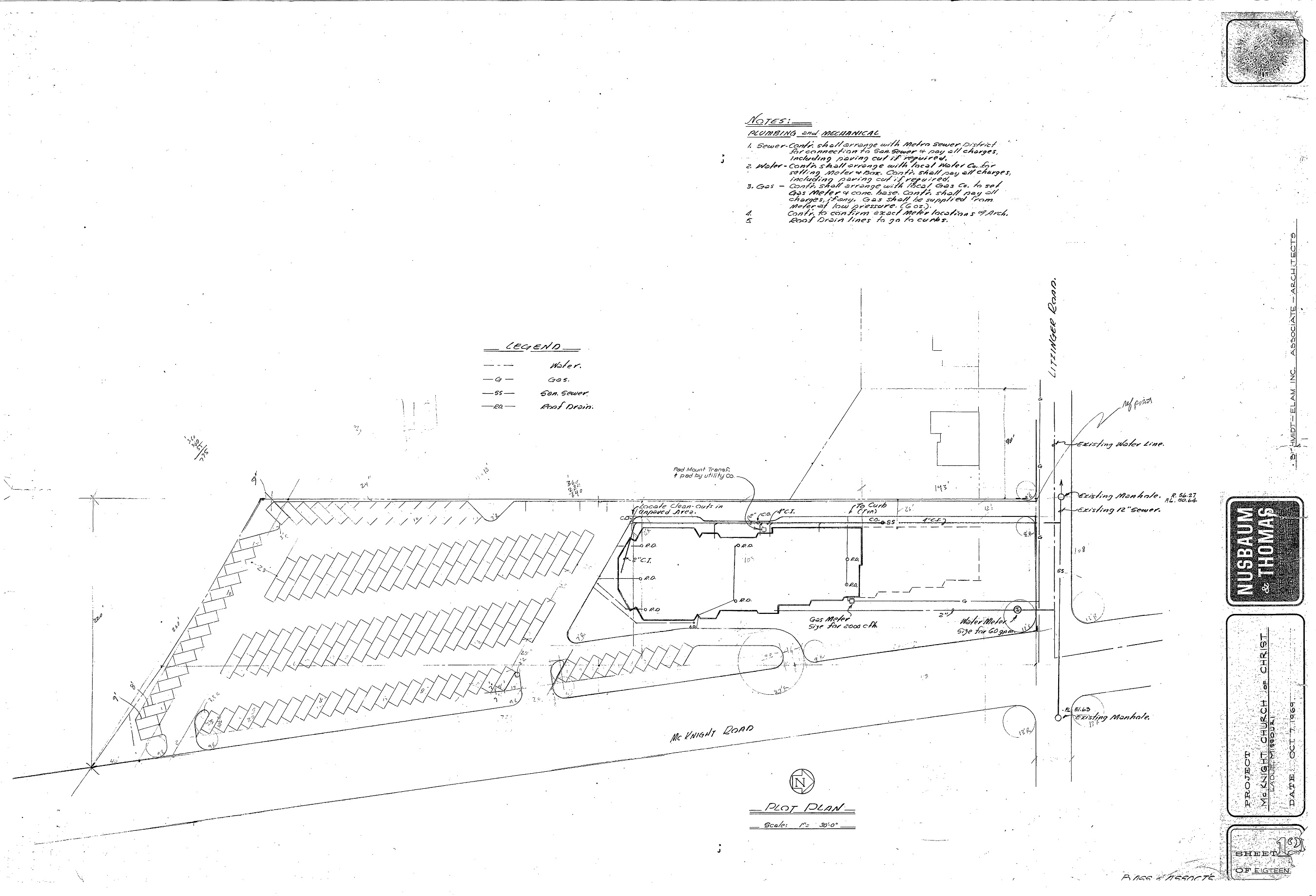
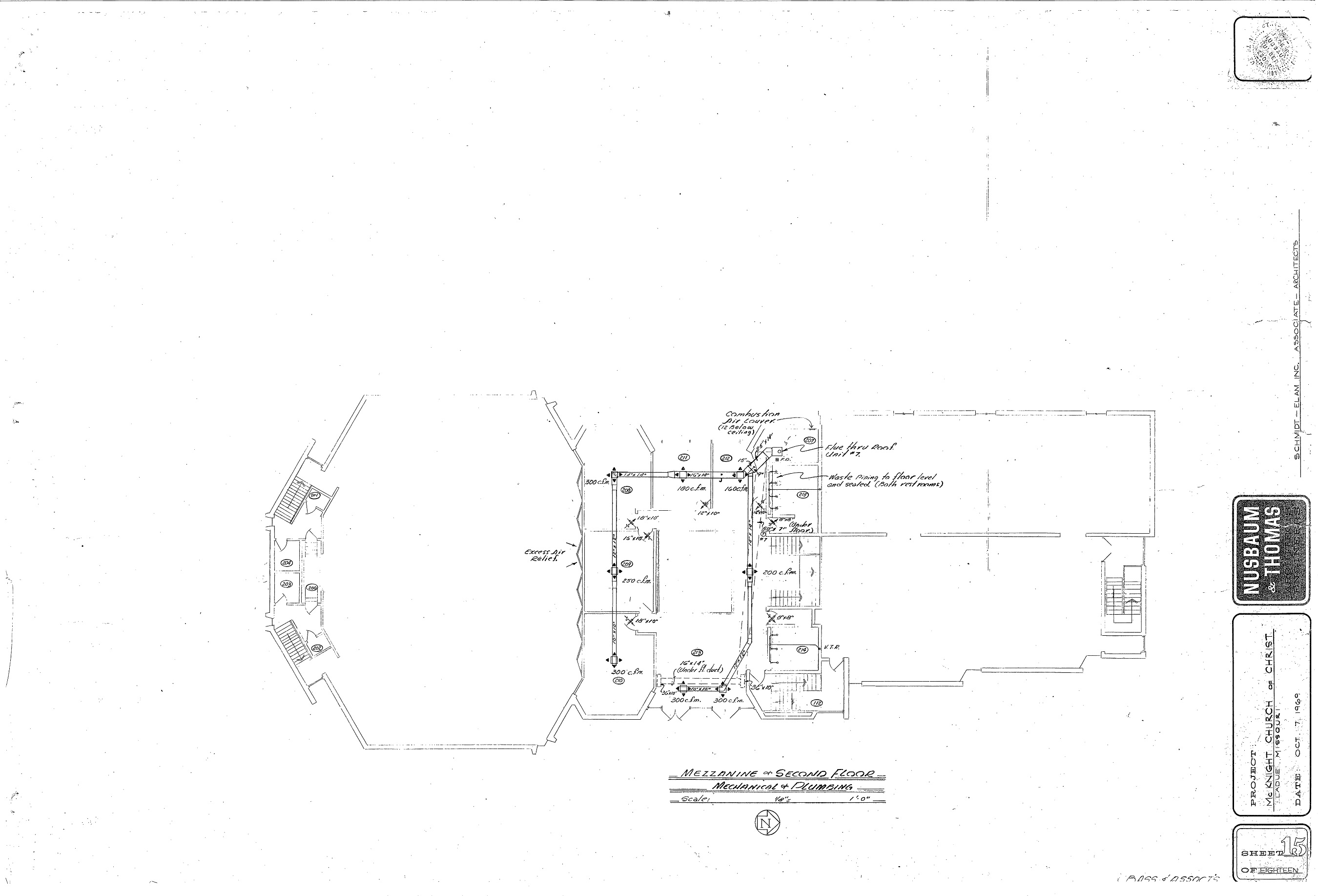
McKnight Crossings Church of Christ
Download a complete set of 1970 blueprints in this .pdf file : 1970MXBlueprints.pdf , or click on a drawing below to get an individual sheet.
This demo only works in browsers that support CSS Grid Layout. If you can see this message, then your
browser isn't supporting Grid. You can try out Grid in
Firefox Nightly or
other browsers by flipping a flag.
























